
Est. mensual: $740 Recalcular
Acerca de esta propiedad
Unifamiliar independienteNúmero de MLS: #10584235
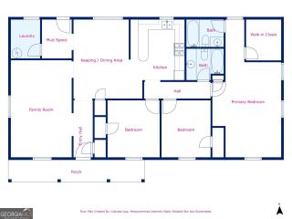
Cuidada con cariño por los propietarios originales y sus hijos que crecieron aquí, esta preciada casa de ladrillo de un solo piso está encaramada en un lote de esquina con entrada lateral. Cuidadosamente renovada con pisos nuevos, pintura fresca y nuevos accesorios de iluminación, esta casa ofrece comodidad y carácter. Desde la entrada del camino de entrada, ingrese a un pequeño espacio de barro con un lavadero adyacente. El área de mantenimiento / comedor se abre a la cocina, con una península para comer única, una estufa de gas nueva y un refrigerador de acero inoxidable. En la parte delantera de la casa, un porche cubierto lo invita a entrar a un vestíbulo y una amplia sala familiar perfecta para noches relajantes o celebrar ocasiones especiales. Dos dormitorios comparten el pasillo principal con un baño completo, mientras que la generosa suite principal está escondida al final para mayor privacidad. El dormitorio principal ofrece mucho espacio para una sala de estar, junto con un amplio vestidor y un baño privado. El exterior recientemente pintado se suma a la presencia de la casa en la calle. Esta casa está lista para comenzar su próximo capítulo con una nueva familia que la apreciará en los años venideros.Características de la propiedad
Antigüedad: | Más de 50 años de antigüedad |
---|---|
Equipamiento: | Cocina, Heladera |
Estilo arquitectónico: | Otro |
Tipo de fachada exterior: | De ladrillo |
Pisos: | Laminado/Flotante |
Área del lote: | 0.26 Acres |
Copyright © 2025 Georgia Multiple Listing Service. All rights reserved. All information provided by the listing agent/broker is deemed reliable but is not guaranteed and should be independently verified. Information being provided is for consumers' personal, non-commercial use and may not be used for any purpose other than to identify prospective properties consumers may be interested in purchasing.
Los comentarios sobre la propiedad se emplea traducción computarizados. La traducción es automática y es solo una aproximación al contenido original proveído del sitio web. La traducción no se debe de considerar exacta ni basarse en ella. No asumimos responsabilidad por la exactitud de la traducción.
Escuela primaria
FORREST ROAD ELEMENTARY SCHOOL
0.6
MillasVer detalle
Escuela secundaria (ciclo básico)
FORT MIDDLE SCHOOL
0.5
MillasVer detalle
Escuela secundaria (ciclo superior)
KENDRICK HIGH SCHOOL
1.2
MillasVer detalle
Otros escuelas cercanos | Distancia | Tipo | Grados/años | Califaciones |
---|---|---|---|---|
Wesley Heights Elementary School | 0.5 mi | Public | PK-5 | C |
Georgetown Elementary School | 1.3 mi | Public | PK-5 | D+ |
East Columbus Magnet Academy | 1.3 mi | Public | 6-8 | D+ |
Reese Road Leadership Academy | 1.6 mi | Public | PK-5 | C- |
Rothschild Leadership Academy | 1.9 mi | Public | 6-8 | D- |