
Est. mensual: $1,044 Recalcular
103 Water St, Hallowell, ME 04347
103 Water St, Hallowell, ME 04347
Acerca de esta propiedad
Unifamiliar independienteNúmero de MLS: #1609628
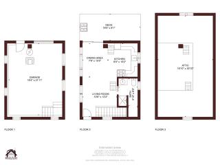
¡El vendedor motivado dice que el precio de vender ahora es una caída de $23,000! Imagina que eres un contratista de construcción profesional. Te encuentras con la parcela perfecta de 100 acres de tierra de caza de primera calidad. Tienes la habilidad, el conocimiento y el equipo para construir el campamento de tus sueños. Coloca un campamento de 18 por 32 sobre una base completa e instala un sistema séptico con un pozo excavado cerca. Conectas el campamento y tienes un generador de electricidad. Instala tanques de propano para su estufa, refrigerador y enciende luces de propano. Su casa rural cuenta con un concepto abierto cocina-comedor-sala bañada en luz natural y acabada en pino. Una puerta corrediza conduce a una terraza de 18 por 8.5 pies y un baño completo completa este nivel. Tienes dos áreas tipo loft para dormir en la tranquila naturaleza. ¡Duerme ocho o mopre cómodamente! El nivel inferior de 21.11 por 16.4 se calienta con una estufa de leña y tiene mucho espacio para que juegues en este espacio abierto completo con una puerta basculante para que entre tu vehículo todo terreno. Disfrute de la soledad y la privacidad en sus 100 acres. Un montón de excrementos de alce y frotamientos de ciervos en la propiedad. Esta ubicación es ideal, ya que está a solo minutos de Bingham, Wyman Lake, el río Kennebec y The Forks. Sugarloaf y Greenville son un viaje fácil. Estás en el centro de un paraíso recreativo. Cuando las condiciones sean las adecuadas, puede hacer motos de nieve y vehículos todo terreno desde aquí. ¡Le espera una oportunidad durante todo el año para relajarse y disfrutar de todo lo que Vacationland tiene para ofrecer! El negocio del vendedor está muy ocupado y desearía tener más tiempo para disfrutar. Las tejas …Ver másCaracterísticas de la propiedad
Antigüedad: | 6-10 años de antigüedad |
---|---|
Amenidades: | Subsuelo |
Estilo arquitectónico: | Al estilo Cape Cod |
Pisos: | A leña |
Área del lote: | 100 Acres |
Tipo de tejado: | De metal |
Habitaciones: | comedor |
Copyright © 2025 Maine Real Estate Information System, Inc. All rights reserved. All information provided by the listing agent/broker is deemed reliable but is not guaranteed and should be independently verified. Information being provided is for consumers' personal, non-commercial use and may not be used for any purpose other than to identify prospective properties consumers may be interested in purchasing.
Los comentarios sobre la propiedad se emplea traducción computarizados. La traducción es automática y es solo una aproximación al contenido original proveído del sitio web. La traducción no se debe de considerar exacta ni basarse en ella. No asumimos responsabilidad por la exactitud de la traducción.
Escuela primaria
MOSCOW ELEMENTARY SCHOOL
3.7
MillasVer detalle
UPPER KENNEBEC VALLEY MIDDLE/SENIOR HIGH SCHOOL
4.4
MillasVer detalle
Escuela secundaria (ciclo básico)
UPPER KENNEBEC VALLEY MIDDLE/SENIOR HIGH SCHOOL
4.4
MillasVer detalle
Escuela secundaria (ciclo superior)
UPPER KENNEBEC VALLEY MIDDLE/SENIOR HIGH SCHOOL
4.4
MillasVer detalle