property image
image 0
image 1
image 2
PROPIEDAD EN VENTA
$94,900
2506 NW 31st Avenue Cape Coral, FL 33993
0.25 Area (Acres)
Est. mensual: $422 Recalcular
Cortesía de UNIVERSE REALTY GROUP, INC.
2506 NW 31st Avenue Cape Coral, FL 33993
Cortesía de UNIVERSE REALTY GROUP, INC.

Acerca de esta propiedad

Otra propiedad residencial
Número de MLS: #2025013793
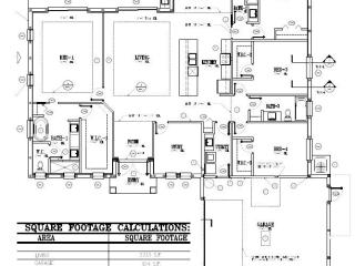
READY TO BUILT YOUR DREAM SOUTHWEST FLORIDA SINGLE FAMILY HOME! This project has a PERMIT APPROVED BRC23-002151 and PAID (Building Plans, Survey, Energy Calcs, Truss Layout, Septic Design ). Excellent Location on NW 31st PL, Close to the Burnt Store Marina, Gulf Courses, 7 Islands development project. Located in North 9 section of the utilities Expansion Project wich has not started construction yet. No Current Assessments.

Características de la propiedad

Área del lote: 0.25 Acres

Copyright © 2025 Florida Gulf Coast Multiple Listing Service, Inc. All rights reserved. All information provided by the listing agent/broker is deemed reliable but is not guaranteed and should be independently verified. Information being provided is for consumers' personal, non-commercial use and may not be used for any purpose other than to identify prospective properties consumers may be interested in purchasing.

Los comentarios sobre la propiedad se emplea traducción computarizados. La traducción es automática y es solo una aproximación al contenido original proveído del sitio web. La traducción no se debe de considerar exacta ni basarse en ella. No asumimos responsabilidad por la exactitud de la traducción.

Escuela primaria
HECTOR A. CAFFERATA, JR. ELEMENTARY SCHOOL
Grados/años KG-5 | Public School
4.8
Millas
Puntuación Escolar
Cape Coral, FL 33993
250 Santa Barbara Blvd N
239.­458.7391

Relación profesores/alumnos
16:1
Número total de alumnos
605

Ver detalle
TRAFALGAR ELEMENTARY SCHOOL
Grados/años KG-5 | Public School
5.8
Millas
Puntuación Escolar
Cape Coral, FL 33991
1850 SW 20th Ave
239.­283.3043

Relación profesores/alumnos
16:1
Número total de alumnos
779

Ver detalle
PATRIOT ELEMENTARY SCHOOL
Grados/años KG-5 | Public School
6.2
Millas
Puntuación Escolar
Cape Coral, FL 33991
711 SW 18th St
239.­242.1023

Relación profesores/alumnos
17:1
Número total de alumnos
715

Ver detalle
SKYLINE ELEMENTARY SCHOOL
Grados/años KG-5 | Public School
6.5
Millas
Puntuación Escolar
Cape Coral, FL 33991
620 SW 19th St
239.­772.3223

Relación profesores/alumnos
15:1
Número total de alumnos
903

Ver detalle
Escuela secundaria (ciclo básico)
MARINER MIDDLE SCHOOL
Grados/años 6-8 | Public School
3.3
Millas
Puntuación Escolar
Cape Coral, FL 33993
425 Chiquita Blvd N
239.­772.1848

Relación profesores/alumnos
19:1
Número total de alumnos
950

Ver detalle
CHALLENGER MIDDLE SCHOOL
Grados/años 6-8 | Public School
6.1
Millas
Puntuación Escolar
Cape Coral, FL 33991
624 SW Trafalgar Pkwy
239.­242.4341

Relación profesores/alumnos
21:1
Número total de alumnos
1113

Ver detalle
Escuela secundaria (ciclo superior)
IDA S. BAKER HIGH SCHOOL
Grados/años 9-12 | Public School
7.8
Millas
Puntuación Escolar
Cape Coral, FL 33914
3500 Agualinda Blvd
239.­458.6690

Relación profesores/alumnos
22:1
Número total de alumnos
1721

Ver detalle
MARINER HIGH SCHOOL
Grados/años 9-12 | Public School
3.1
Millas
Puntuación Escolar
Cape Coral, FL 33993
701 Chiquita Blvd N
239.­772.3324

Relación profesores/alumnos
21:1
Número total de alumnos
1489

Ver detalle
ISLAND COAST HIGH SCHOOL
Grados/años 9-12 | Public School
6.9
Millas
Puntuación Escolar
Cape Coral, FL 33909
2125 De Navarra Pkwy
239.­458.0362

Relación profesores/alumnos
21:1
Número total de alumnos
1432

Ver detalle
NORTH FORT MYERS HIGH SCHOOL
Grados/años 9-12 | Public School
8.0
Millas
Puntuación Escolar
North Fort Myers, FL 33903
5000 Orange Grove Blvd
239.­995.2117

Relación profesores/alumnos
20:1
Número total de alumnos
1801

Ver detalle
CAPE CORAL HIGH SCHOOL
Grados/años 9-12 | Public School
7.3
Millas
Puntuación Escolar
Cape Coral, FL 33991
2300 Santa Barbara Blvd
239.­574.6766

Relación profesores/alumnos
21:1
Número total de alumnos
1624

Ver detalle
Otros escuelas cercanos Distancia Tipo Grados/años Califaciones
Oasis Elementary Charter School-north 3.7 mi Public KG-5 A-
Cape Coral Technical College 4.7 mi Public 9-12
North Nicholas High School 4.9 mi Public 9-12 D-
Christian Life Academy 4.9 mi Private KG-8
Christian Life Academy Of Lee County 4.9 mi Private KG-8
Mid Cape Global Academy 5.3 mi Public PK-8 D
Cape Coral Christian School 5.8 mi Private KG-12
Estos datos se suministran exclusivamente con fines informativos, y no se los deberá usar como base a la hora de decidir comprar una propiedad residencial. Los datos sobre los centros de enseñanza no garantizan la inscripción en estos. Tenga a bien contactar a un profesional inmobiliario local o al (a los) distrito(s) escolar(es) loca(es), para obtener información actualizada sobre los centros de enseñanza de la zona. La finalidad de esta información no es determinar si una persona es elegible para asistir a un centro de enseñanza ni para usar o beneficiarse de los servicios de otra ciudad, pueblo o localidad.
Edad promedio
43
Casados
61%
Número de hogares
12,201
Hogares con niños
33.2%
Comunidad:
Población por edades
Población por grupos étnicos
Población por nivel educativo
Hogares por nivel de ingresos
Datos no disponibles
Tipos de ocupación
Transporte al trabajo
Los datos proporcionados por Attom Data Solutions. Los derechos de autor (Copyright©) 2025. Información considerada confiable pero no garantizada.
Nuevas propiedades recientemente publicadas

Se el primero en ver estas viviendas

Propiedades con precios recientemente reducidos (19)

Aprovecha estas oportunidades